Cloverfield

designed and built to suit your budget and specifications

All finishes will be displayed for you to choose from, so you can add your own personal touch to your new home. 

With elegant and cost effective designs you can get your dream home from as little as  R799 000.

Book your viewing and elevate your life.

Take a Closer Look​

designed and built to suit your budget and specifications

All finishes will be displayed for you to choose from, so you can add your own personal touch to your new home. 

With elegant and cost effective designs you can get your dream home from as little as  R732 000.

Book your viewing and elevate your life.

Discover Cloverfield – Where Tranquil Countryside Living Meets Modern Convenience

Located in Dersley Springs, Cloverfield offers a fresh take on luxury with a variety of stylish home options:

  • 3-bedroom homes from 60 m² to 70 m²

Discover a secure, full-title stands in a gated community offering modern home designs, and easy access to schools, shops, and highways. — all perfectly located for your lifestyle.

  • 3-bedroom homes starting from R799 000
    Approx. R7 900 pm | Qualifying combined salary: R26 200 pm

Don’t miss out on your chance to own in this sought-after development.


Book your viewing at Cloverfield – your new chapter starts here.

GET IN TOUCH




    Halite Road, Dersley, Springs, 1569

    unit plans

    dersley-x10-TypeCOPT

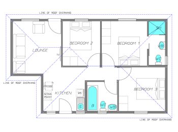
    3 Bedroom, 1 bathroom | Type C

    From
    R799 000.00

    UNIT SIZE – 55m2

    BOND & TRANSFER FEES INCLUDED

    dersley-x10-TypeDOPT

    3 Bedroom, 2 bathroom | Type D

    From
    R820 000.00

    UNIT SIZE – 60m²

    BOND & TRANSFER FEES INCLUDED

    dersley-x10-TypeEOPT

    3 Bedroom, 2 bathroom | Type E

    From
    R850 000.00

    UNIT SIZE – 65m²

    BOND & TRANSFER FEES INCLUDED

    Copyright © 2026 | Powered by Pause Online